• Design
  • Coulissant minimaliste
  • MB-SKYLINE

Système MB-SKYLINE - Coulissant Design.

MBSKYLINE
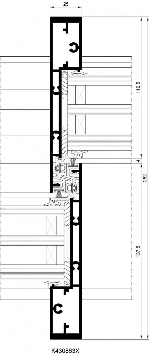
MBSKYLINE coupe profil

Coupe profil

  • MBSKYLINE coupe profil

    Coupe profil

MB-SKYLINE Représentation

Le système pour porte coulissante MB-SKYLINE sur huisserie invisible fait appel aux profilés étroits pour une allure élégante et minimaliste. Les portes fabriquées à l'aide du MB-SKYLINE conféreront à votre maison un aspect résolument moderne et design.

Description et caractéristiques :
  • Profilé Latéral de 71 mm (vantail) et 190 mm de profondeur (cadre à 2 rails).
  • Design moderne et esthétique élevée :
    • Le cadre est caché dans le mur, dans le sol et dans le plafond.
    • Le profilé de cadre est entièrement aligné sur les côtés.
    • La largeur de raccordement visible des vantaux de porte est de 25mm.
  • Vantail de porte de jusqu'à 750 kg et 4 mètres de hauteur.
  • Profilés à isolation thermique à 3 chambres.
  • La porte s'ouvre manuellement ou automatiquement.
  • La motorisation et les unités de commande sont cachés dans les profilés du dormant.
  • Le MB-Skyline peut utiliser une unité automatique installée à l'extérieur de la construction.

 

Remplissage :
  • Utilisation de tous types de vitrages et panneaux. Epaisseur de 52 à 60mm.
Finition :
  • Anodisé (naturel, or, bronze, noire).
  • Thermolaqué selon la gamme RAL, structuré, métallisée ou fine structure.
  • Suivant votre degré de finition, de votre code poudre, d’une peinture liquide, d’un traitement spécial de coloration nous pouvons répondre à votre demande.
  • Traitement de surface anti-corrosif adapté au milieu chloré ou salin.
Support et mise en oeuvre :
  • Pose dans cloisons légères, voile béton, béton cellulaire et maçonnerie.
  • Fixation par pattes ou par vis auto-perforantes.
  • Périphérique : utilisation de membrane étanche à l’air intérieure et/ou étanche eau/air extérieure, bourrage de mousse certifiées étanche eau-air-vent.
  • Joint de silicone extérieur neutre.
Classes Résistances
Résistance à l'eau
Classe 9A 600Pa
EN 12208
Déperdition thermique
Uw
A partir 0,85 W/(m²k)
Étanchéité à l'air
Classe 3
EN 12207
Résistance au cycle
Classe C5
EN 12210


Futurium sprl

Rue de lonnoux 5
6880 Bertrix (Belgique)

Numéro d'entreprise : BE-0723.629.502

siège social futurium

 

 

 

 

 mobile bleu   +352 661.119.236
mail bleu  Cette adresse e-mail est protégée contre les robots spammeurs. Vous devez activer le JavaScript pour la visualiser.

Newsletters

Veuillez activer le javascript sur cette page pour pouvoir valider le formulaire


Copyright © Futurium - 2019